Verkauft

Vermietete Maisonette-Dachgeschosswohnung in Nähe zum Arnimplatz in Prenzlberg

Vermietete Maisonette-Dachgeschosswohnung in Nähe zum Arnimplatz in Prenzlberg

10439 Berlin, Dachgeschosswohnung

Beschreibung

Die wichtigsten Fakten im Überblick:

• Sehr zentrale und beliebte Lage in Berlin-Prenzlauer Berg
• Hervorragende Anbindung an die öffentlichen Verkehrsmittel
• Dachgeschoss-Maisonettewohnung in einem gepflegten Berliner Altbau
• Zwei Tageslichtbäder
• Zwei Balkone und eine Terrasse mit Ost-Ausrichtung
• Trockener Kellerraum dazugehörig
• Positives Mietverhältnis seit 2012

Die angebotene Maisonette-Dachgeschosswohnung erstreckt sich über das vierte und fünfte Obergeschoss eines im Jahr 1920 erbauten Wohn- und Geschäftshauses im Herzen von Prenzlauer Berg.

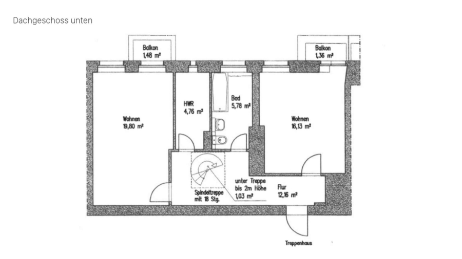
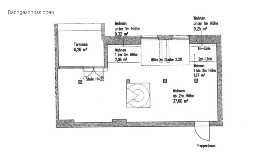
Mit einer Wohnfläche von ca. 103 m² erstreckt sich die Wohnung über insgesamt zwei Schlafzimmer, einem großen und offenen Koch-, Wohn- und Essbereich, zwei Tageslichtbädern, zwei Balkone und einer Dachterrasse.

Im 4. Obergeschoss befinden sich neben dem Schlaf- und Kinderzimmer zwei Tageslichtbäder, welche jeweils über eine Dusche oder eine Badewanne verfügen. Die zwei Balkone mit Ost-Ausrichtung sind jeweils von beiden Schlafzimmern begehbar und laden zu morgendlichen Sonnenaufgänge ein. Im Dachgeschoss (5. Obergeschoss) erstreckt sich über knapp 38 m² der großzügige Koch-, Wohn- und Essbereich. Hier schließt sich die Dachterrasse an, welche einen fantastischen Ausblick über die Dächer Berlins bietet.

Das Wohnhaus, in dem sich die angebotene Dachgeschosswohnung befindet, ist ein sehr gepflegter Altbau der stets instandgehalten wird. Wunderschöne Stuckelemente im Treppenhaus untermauern den typischen. Berliner Altbau-Charme. Ein innenliegender und moderner Personenaufzug bietet einen bequemen Zugang in die oberen Geschosse.

Der familienfreundliche Innenhof ist für alle Bewohner zugänglich und verfügt über genügend Fahrrad-Stellplätze. Zusätzlichen Stauraum bietet ein dazugehöriger Kellerraum.

Die Wohnung ist seit 2012 zu einer Nettokaltmiete von 866,15 € (aktuelle Mietendeckel-konforme Nettokaltmiete beträgt 786,02 €) vermietet und profitiert von einem sehr angenehmen Mietverhältnis.

Ausstattung

Aufgrund der aktuellen Mietsituation bitten wir um Ihr Verständnis, dass wir derzeit leider keine Innenaufnahmen hochstellen dürfen und die Vermarktung auf einem diskreten Weg durchführen werden.
Besichtigungen können jedoch vereinbart und durchgeführt werden.

Aktuell werden Mängel auf der Terrasse sowie auf den Balkonen behoben.

Objekt-ID
126938300
Objekttypen
Dachgeschosswohnung, Wohnung
Adresse
10439 Berlin
(Pankow - Prenzlauer Berg)
Berlin
Etage
4
Etagen im Haus
5
Wohnfläche ca.
103 m²
Balkon-/Terrassen­fläche ca.
9,10 m²
Grund­stück ca.
103 m²
Zimmer
3
Schlafzimmer
2
Badezimmer
1
Balkone
2
Terrassen
1
Küche
Einbauküche
Heizungsart
Zentralheizung
Baujahr
1920
Letzte Modernisierung
2012
Zustand
gepflegt
Ausstattung
Standard
Status
vermietet
Käufer­provision
3,57 % inkl. gesetzlicher MwSt.
Hausgeld
300,00 EUR
Kaltmiete
866,15 EUR
Kaufpreis
449.000 EUR
Nebenkosten
211,00 EUR
Heizkosten
103,00 EUR
Warmmiete
1.077,15 EUR
  • Abstellraum
  • Badewanne
  • Balkon
  • Dielenboden
  • Dusche
  • Einbauküche
  • Keller
  • Personenaufzug
  • Tageslichtbad
  • Terrasse
Energieausweistyp
Verbrauchs­ausweis
Ausstellungsdatum
07.12.2018
Gültig bis
07.12.2028
Gebäudeart
Wohngebäude
Baujahr
1920
Primärenergieträger
Erdgas leicht
Endenergie­verbrauch
108,00 kWh/(m²·a)
Energie­effizienz­klasse
D

Lage

Wer die Szene sucht, sucht den Prenzlberg. Eines vereint die trendigen Mütter, die Szenegänger und die Fashionistas am Prenzlberg: Sie sind das hippe Volk der Stadt Berlin.
Der Prenzlauer Berg war früher ein eigenständiger Bezirk. Seit der Verwaltungsreform 2001 ist er jedoch der am südlichsten gelegene Ortsteil des Bezirks Pankow, der wiederum im Norden von Berlin angesiedelt ist. Der Prenzlauer Berg selbst jedoch, angrenzend an Mitte und den Friedrichshain, ist äußerst zentral gelegen. Auf der Fläche von fast 11 km² leben insgesamt 160.127 Einwohner.

Heutzutage leben im Prenzlauer Berg vor allem Bürger aus Mittel- und Oberschicht – besonders beliebt ist der Ortsteil bei jungen Familien. Die alternative Szene ist lange nicht mehr so präsent wie früher, trotzdem ist das Milieu nach wie vor linkspolitisch und stark Ökologie-orientiert.
Besonders beliebt ist der berühmte Mauerpark, auf dem jeden Sonntag ein großer Flohmarkt stattfindet und viele Sänger und Künstler performen. Ein weiteres Highlight ist das Freiluft-Karaoke, dass dort parallel zum Markt stattfindet und mittlerweile in ganz Berlin große Bekanntheit erlangt hat. Ein weiterer Flohmarkt findet außerdem, ebenfalls sonntags auf dem Arkonaplatz statt. Beliebt sind auch der Helmholzplatz und der Kollwitzplatz und die darum liegenden und gleichnamigen Kieze mit vielen kleinen Cafés und süßen Läden. Aber auch der Winskiez, rund um die gleichnamige Straße, und das Bötzow-Viertel im Osten, angrenzend an den Volkspark Friedrichshain, sind beliebte Gegenden zum Schlendern und Stöbern. Besonders viel los ist meist auf der Kastanienallee, die geradewegs nach Mitte führt und mit vielen schönen Cafés, Restaurants und Shops auffahren kann.

In ummittelbarer Nähe zu der Wohnung befindet sich alle Einrichtungen des täglichen Bedarfs. Neben Apotheken und einigen Supermärkten sind zusätzlich zahlreiche Cafes wiederzufinden, ihn welchem Sie die einzigartige Atmosphäre von Prenzlauber-Berg erleben können.

Die Eigentumswohnung befindet sich nur wenige Laufminuten von der Tramstation „Schönfließer Straße“ entfernt. Von hier verkehrt die Tramlinie M13 Richtung „S Warschauer Straße Bhf“. Zusätzlich ist der U-Bahnhof “Schönauer Allee”, welcher von der U-Bahnlinie 2 befahren wird, in wenigen Gehminuten erreicht. Den Berliner Hauptbahnhof erreicht man von hier in knapp 35 Minuten. Zur Autobahn Auffahrt A114 (Am Feuchten Winkel) sind es knapp 4,5 km. Den Berliner Flughafen BER erreicht man mit dem Auto in ca. 40 Minuten.

Die dargestellte Position der Immobilie ist nur eine ungefähre Angabe.

449000 €
zzgl. Käuferprovision
Anfrage senden

Ihr Ansprechpartner

Daniel Kolchynskij
Backoffice
D.K. Real Estate GmbH
Hubertusallee 76, 14193 Berlin
T: +49 30 120 841 86
E: kolchynskij@dk360.de

Auf einen Blick

Objektart
Wohnung
Typ
Dachgeschosswohnung
Zimmer
3
Fläche
103 m²
Baujahr
1920
Objekt-ID
126938300

Anfrage senden

/ Haben Sie Fragen?
Wir beantworten Ihnen diese gern. Hinterlassen Sie einfach Ihre Kontaktdaten und wir nehmen schnellstmöglich Kontakt mit Ihnen auf.
  • Passgenaue Grundstücke für Investoren.
  • Nachhaltige Wertsteigerung für Eigentümer.
  • Kontaktdaten und wir nehmen schnellstmöglich Kontakt.
* Pflichtangaben
 SSL-verschlüsselt